|
產品特點:高靈敏度大流量蒸汽減壓閥屬于先導活塞式減壓閥。由主閥和導閥兩部分組成。主閥主要由閥座、主閥盤、活塞、彈簧等零件組成。導閥主要由閥座、閥瓣、膜片、彈簧、調節彈簧等零件組成。本蒸汽減壓閥在普通減壓閥基礎上作了很大改進,加大了活塞面積,改變了節流結構。改變了密封形式,加大了過流面積等等,從而在提高靈敏度、流量、壽命等方面大大改善了性能。本蒸汽減壓閥主要用于蒸汽管路,適用于流量大流量變化大,進口壓力變化大的蒸汽管路。

二、高靈敏度大流量蒸汽減壓閥主要技術參數和性能指標:
|
公稱壓力(Mpa) |
1.6 |
2.5 |
4.0 |
6.4 |
10.0 |
16.0 |
|
殼體試驗壓力(Mpa)* |
2.4 |
3.75 |
6.0 |
9.6 |
15.0 |
24 |
|
密封試驗壓力(Mpa) |
1.6 |
2.5 |
4.0 |
6.4 |
10.0 |
16.0 |
|
最高進口壓力(Mpa) |
1.6 |
2.5 |
4.0 |
6.4 |
10.0 |
16.0 |
|
出口壓力范圍(Mpa) |
0.04-1.0 |
0.05-1.6 |
0.08-2.5 |
0.2-3.5 |
0.5-3.5 |
0.5-4.5 |
|
壓力特性偏差(Mpa)△P2P |
GB12246-1989 |
|
流量特性偏差(Mpa)P2G |
GB12246-1989 |
|
最小壓差(Mpa) |
0.07 |
0.1 |
0.15 |
0.4 |
0.5 |
0.8 |
|
滲漏量 |
GB12245-1989 |
*:殼體試驗不包括膜片、頂蓋
三、高靈敏度大流量蒸汽減壓閥主要零件材料:
|
零件名稱 |
零件材料 |
|
閥體 閥蓋 底蓋 |
WCB |
|
閥座 閥瓣 |
2Cr13 |
|
缸套 活塞 |
鋁鐵青銅 |
|
膜片 |
1Cr18Ni9 |
|
活塞環 |
合金鑄鐵/對位聚苯 |
|
導閥座 導閥桿 |
2Cr13 |
|
主閥彈簧 |
50CrVA |
|
導閥主彈簧 |
50CrVA |
|
調節彈簧 |
60Si2Mn |
四、高靈敏度大流量蒸汽減壓閥流量系數(Cv):
|
DN |
50 |
65 |
80 |
100 |
125 |
150 |
200 |
250 |
300 |
350 |
400 |
500 |
|
Cv |
1 |
2.5 |
4 |
6.5 |
9 |
16 |
25 |
36 |
64 |
100 |
140 |
250 |
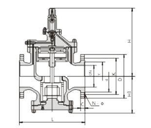
五、YGA43H/Y型高靈敏度大流量蒸汽減壓閥外形尺寸(PN1.6-4.0) 單位:mm:
|
公稱通徑DN |
外 形 尺 寸 |
|
L |
H |
Hl |
|
1.6/2.5MPa |
4.0MPa |
|
15 |
160 |
180 |
265 |
85 |
|
20 |
160 |
180 |
265 |
85 |
|
25 |
180 |
200 |
280 |
95 |
|
32 |
200 |
220 |
280 |
95 |
|
40 |
220 |
240 |
290 |
105 |
|
50 |
250 |
270 |
300 |
130 |
|
65 |
280 |
300 |
315 |
145 |
|
80 |
310 |
330 |
330 |
170 |
|
100 |
350 |
380 |
405 |
200 |
|
125 |
400 |
450 |
450 |
225 |
|
150 |
450 |
500 |
485 |
265 |
|
200 |
500 |
550 |
570 |
290 |
|
250 |
650 |
640 |
325 |
|
300 |
800 |
740 |
360 |
|
350 |
850 |
810 |
395 |
|
400 |
900 |
950 |
430 |
|
500 |
950 |
1080 |
500 |
六、YGA43H/Y型高靈敏度大流量蒸汽減壓閥外形尺寸(PN6.4-16.0) 單位:mm:
|
公稱通徑DN |
外 形 尺 寸 |
|
L |
H |
Hl |
|
6.4MPa |
10.0/16.0MPa |
|
15 |
180 |
180 |
280 |
100 |
|
20 |
180 |
200 |
280 |
100 |
|
25 |
200 |
220 |
300 |
115 |
|
32 |
220 |
230 |
300 |
115 |
|
40 |
240 |
240 |
315 |
130 |
|
50 |
270 |
300 |
340 |
135 |
|
65 |
300 |
340 |
355 |
150 |
|
80 |
330 |
360 |
370 |
175 |
|
100 |
380 |
450 |
205 |
|
125 |
450 |
510 |
235 |
|
150 |
500 |
555 |
275 |
|
200 |
550 |
640 |
300 |
|
250 |
650 |
720 |
335 |
|
300 |
800 |
830 |
375 |
|
350 |
850 |
880 |
410 |
|
400 |
900 |
1020 |
445 |
|
500 |
950 |
- |
1080 |
515 | |