QB2-10雙口排氣閥產品概述:
本排氣閥主要由閥體、閥門、上蓋、閥桿、浮球、排氣嘴等組成。當需要排出管道內的氣體時,應逆時針方向旋轉閥桿,使其閥桿連同閥門上升,使管道內的空氣在水的壓強作用下進入體腔內,并從排氣嘴排出,隨之管道內的水充滿體腔內,使浮球在水的浮力作用下,向上移動將排氣嘴堵塞,達到自行密封,管道在正常行中,水中的空氣在壓強的作用下,不斷排入排氣閥的體腔上部,迫使浮球下降,離開原來密封位置,這時空氣又從排氣嘴排出,隨之,浮球又恢復到原來位置自密封,因此,排氣閥在正常工作中閥門始終是開著的,浮球不斷重復上述動作,空氣不斷排出,當需要檢修或清掃體腔時,應將閥門關閉。本排氣閥,順時針旋轉閥桿時為關閉。
QB2雙口排氣閥具備以下特點:
1、能夠排除管道中的氣體,減少阻力,節約能源。
2、當管道負壓時,能快速自動吸氣,防止管道破裂。
3、浮球為不銹鋼,使用壽命長,安全可靠。
注意事項:
(1)注:D>350mm管道請選單口排氣閥(QB1-10)。
(2)安裝雙口排氣閥,底下一定要安裝一只保護閥門、球閥(Q41F-16),以免檢修停水。
(3)如需方要求排氣閥法蘭大小尺寸如變動,請在合同上注明法蘭連接尺寸。
QB2-10雙口排氣閥用途及主要性能規范:
雙口排氣閥適用于溫度不超過100℃的水,熱水管道上使管道內的空氣全部排出。

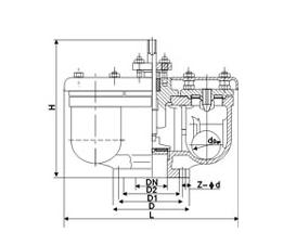
雙口排氣閥、球閥主要外形及連接尺寸 |
型號 |
公稱通徑Dg |
型號 |
公稱通徑Dg |
|
QB2-10 |
40 |
Q41F-16 |
40 |
QB2-10 |
50 |
Q41F-16 |
50 |
QB2-10 |
75 |
Q41F-16 |
75 |
QB2-10 |
100 |
Q41F-16 |
100 |
QB2-10 |
150 |
Q41F-16 |
150 |
QB2-10 |
200 |
Q41F-16 |
200 |
QB2-10 |
250 |
Q41F-16 |
250 |
QB2-10 |
300 |
Q41F-16 |
300 |
|
型號 |
公稱通徑 |
主要尺寸(mm) |
D |
D1 |
D2 |
L |
Z-φd |
介質 |
閥體材料 |
QB2-10 |
40 |
145 |
110 |
85 |
430 |
4-φ18 |
水 |
鑄鐵 |
QB2-10 |
50 |
160 |
125 |
100 |
430 |
4-φ18 |
水 |
鑄鐵 |
QB2-10 |
75 |
195 |
160 |
135 |
470 |
4-φ18 |
水 |
鑄鐵 |
QB2-10 |
100 |
215 |
180 |
155 |
500 |
4-φ18 |
水 |
鑄鐵 |
QB2-10 |
150 |
280 |
240 |
210 |
540 |
8-φ20 |
水 |
鑄鐵 |
QB2-10 |
200 |
335 |
295 |
265 |
700 |
8-φ20 |
水 |
鑄鐵 |
QB2-10型雙口排氣閥每小時排氣量表
|
規格 |
50 |
75 |
100 |
150 |
200 |
立方米/小時 |
4-173 |
85-352 |
14-597 |
22-904 |
27-1145 | |